מיקום: דב הוז 23 תל אביב
מה בפרויקט: פרויקט תמ״א 38. מעל בניין בן 4 קומות ייבנו שתי קומות חדשות ובהן 3 דירות יוקרה: דירת 4 חדרים, מיני פנטהאוס ודירת גג מפנקת הכוללת גג עליון ובריכת שחיה לכל דירה תיהיה חניה פרטית.
ברחוב שקט במרכז תל אביב, במרכז הליכה קצרה מחוף הים, מרחוב דיזינגוף התוסס, בית ליסין ועוד הרבה מן המקומות שיש לתל אביב להציע – מיקום המאפשר מגורים שקטים ושלווים לצד זמינות לחיים תוססים ומגוונים.
אדריכלות: רבין אדריכלים
סטטוס: התקבלה החלטת ועדה
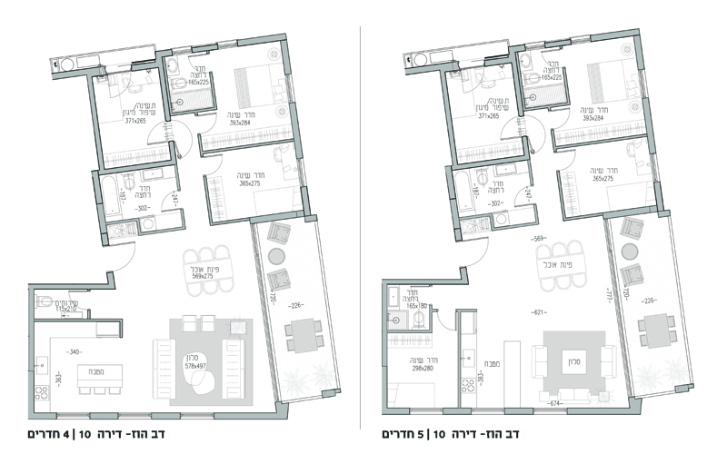
דירה 10
חדרים: 4 או 5
קומה: 4
שטח: 125.5 מ״ר + 17.5 מ״ר מרפסת
כיווני אוויר: צפון/מזרח/דרום
✔ מעלית
✔ חניה
X מחסן
דירה 11
חדרים: 4
קומה: 4
שטח: 98.5 מ״ר + 12 מ״ר מרפסת
כיווני אוויר: צפון/מערב/דרום
✔ מעלית
✔ חניה
X מחסן
דירה 12
חדרים: 4
קומה: 5 + גג
שטח: 158 מ״ר + 93.5 מ״ר מרפסת + 64 מ״ר גג עליון
כיווני אוויר: ארבעה כיוונים
✔ מעלית
✔ 2 חניות
X מחסן
| קומה | דירה | חדרים | שטח | סטטוס | תוכניות ומפרט |
|---|---|---|---|---|---|
| 4 | 10 | 4 או 5 | 125.5 מ"ר + 17.5 מ״ר מרפסת | נמכרה | |
| 4 | 11 | 4 | 114.5 מ"ר + 12 מ"ר מרפסת | למכירה | |
| 5 | 12 | 4 | 158 מ״ר + 93.5 מ״ר מרפסת + 64 מ״ר גג עליון | למכירה |
דירה 10
דירה 12
בקרבת מקום ניתן למצוא:



ליצירת קשר
נשמח לתת לך מידע על דירות למכירה בפרויקט זה